Specifications
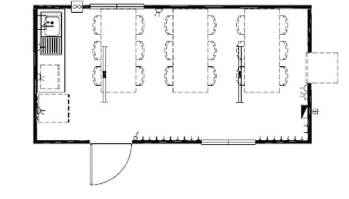
Description
- External plain metal door
- Windows
- Cut outs for air conditioners
- Kitchenette counter
- Sink and drainer
- Mini boil unit
- Table and chairs
- Fridge
- Microwave
- Diffused fluoro lights
- Single socket outlets
- Double socket outlets
- Load centre
Dimensions
6.0m
Length
×
3.0m
Width
Categories
Similar products
